White Pearl Apartment 2.06
Preview only — see all hotel photos
See all 32 photos
Mostra hotel sulla mappa
White Pearl Apartment 2.06
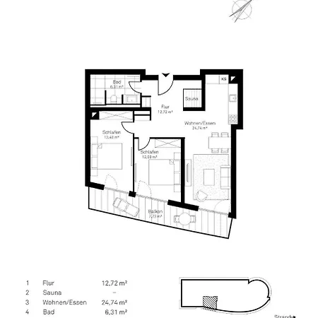
White Pearl Apartment 2.06 Timmendorfer Strand, di 77 m², si trova a Timmendorfer Strand, a 1 km dal SEA LIFE Timmendorfer Strand, e coccola gli ospiti con una sauna. C'è Hermann-Lons-Blick a 10 minuti in auto dall'appartamento.
Quest'appartamento si trova a Timmendorfer Strand, a 15 minuti a piedi dal centro. Le spiagge di Timmendorfer Strand sono a circa 1 km. Il White Pearl Apartment 2.06 è situato a 15 minuti in auto da Seebrücke Scharbeutz.
Soggiornando nell'appartamento, gli ospiti hanno accesso a una cucina dotata di una lavatrice. Questo alloggio dispone di 2 camere da letto. Il White Pearl Apartment 2.06 è dotato di una doccia e una lavatrice per migliorare il tuo comfort. Il bagno è dotato di asciugacapelli e asciugamani.
Ci sono una lavastoviglie e un forno nella cucina completamente attrezzata. L'aeroporto più vicino è quello di Lubecca e dista 30 km da questa struttura.
Servizi
Top Servizi
- Wi-Fi
- Spiaggia privata
- Attività sportive
- Animali domestici
Servizi
- Struttura non fumatori
- Wi-Fi
- Parcheggio
- Cassetta di sicurezza
- Animali domestici ammessi
- Ascensore
- Rivelatori di fumo
- Bollitore elettrico
- Pentolame/Utensili da cucina
- Accesso alla spiaggia
- Sauna
- Campo da golf
- Riscaldamento
- Area soggiorno
- Tavolo da pranzo
- Lavatrice
- TV a schermo piatto
Politica
- Letti supplementari e letti per bambini
- In camera non sono forniti i lettini.
Mappa
Attrazioni locali
Attrazioni turistiche
- Bay of Lübeck (2,6 km)
- Ostsee Therme Scharbeutz (900 m)
Aeroporti
- Aeroporto di Lubecca (28 km)
Stazioni ferroviarie
- Rickling (41 km)